Van Lieshout Kruize NVM Makelaars & Taxateurs o.g.

Tedingerstraat 28 Leidschendam

Deze woning is verkocht
oppervlakte
117 m²
kamer(s)
4
soort woning
tussenwoning
Bouwjaar
1928
Rustig gelegen tusseneengezinswoning met zonnige uitgebouwde woonkamer en een in 1993 gerealiseerde opbouw 2de verdieping. De woning is voorzien van dubbele beglazing, betonnen begane grondvloer met vloerverwarming diverse screens of rolluiken en bovendien energiezuinig door de aanwezigheid van 12 in 2021 geïnstalleerde zonnepanelen. (De levering in 2022 is 2216kWh).

De woning is gelegen in de gezellige Zeeheldenwijk nabij "De Vliet" en de sluisjes met diverse restaurants en terrassen. Diverse voorzieningen zijn goed bereikbaar zoals buurtpark, het openbaar vervoer, winkelcentra zoals de "Damlaan", "Leidschenveen" en The Mall of The Netherlands en de diverse uitvalswegen richting Rotterdam, Amsterdam, Utrecht en Den Haag.

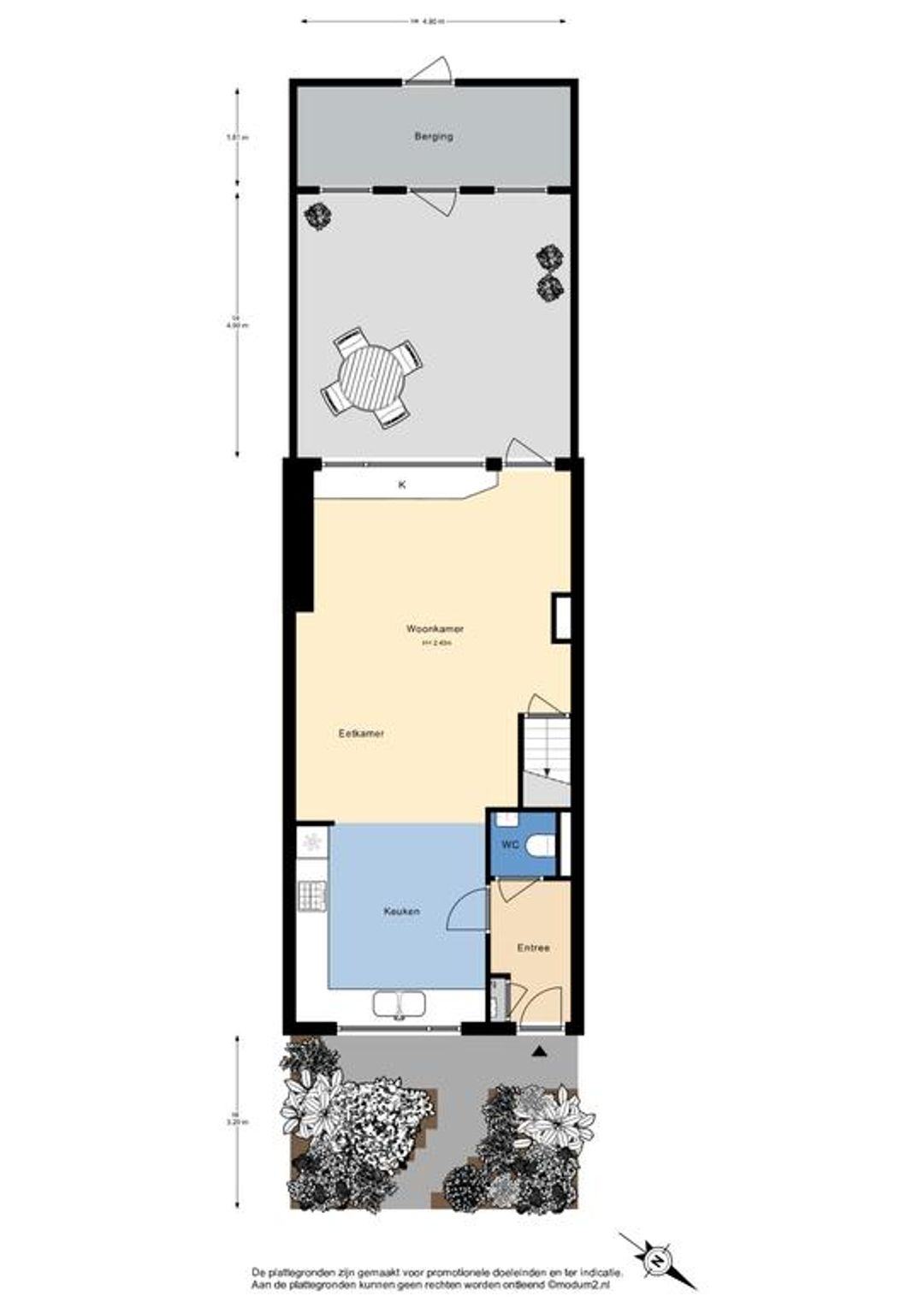
INDELING WONING:
Voortuin, ruim entree, meterkast, toilet met fonteintje. Grote zonnige uitgebouwde woon/eetkamer 6.46x4.75 met betonnen vloer voorzien van tegels en vloerverwarming en voorraadkast onder de trap. L-woonkeuken 3.62x3.50 aan de voorzijde met diverse inbouwapparatuur zoals dubbele spoelbak, 4-pits gaskookplaat en koelkast met vriesvak. vanuit de woonkamer de deur naar de geheel betegelde op het ZW gelegen achtertuin/plaats 4.90x4.90 met over de gehele breedte een grote stenen berging 1.81x4.90 voorzien van elektra, opstelling van de Solax power converter ( voor de zonnepanelen) en een achterom.

EERSTE VERDIEPING:
Overloop, gangkast, met Nefit combiketel (bouwjaar 2018), voorslaapkamer 2.47x5.10 over de breedte, achterslaapkamer ged.4.13x2.68 met vaste kast onder de trap en een elektrisch bedienbaar rolluik. Moderne luxe geheel betegelde badkamer 3.35x2.45 met vloerverwarming, design radiator, ruime inloopdouche, 2e toilet, aansluiting voor de wasmachine/droger en een fraai wastafelmeubel met twee zijkasten. Tevens een deur naar groot balkon 2.56x5.48 aan de achterzijde.

In 1993 opgebouwde TWEEDE VERDIEPING:
Overloop, ruime bergzolder 1.34x5.10 over de breedte aan de voorzijde met de opstelling van de mechanisch ventilatie en een 2de Solax power converter. Grote hoofdslaapkamer ged.4.91x3.64 met dakkapel aan de achterzijde voorzien van screen, airco en een vaste kastenwand. 2de badkamerruimte 1.82x1.36 met wastafelmeubel en een 3de toilet.


BIJZONDERHEDEN:
- Gebruiksoppervlak wonen NEN-gemeten 116,7m2.
- Inhoud van de woning NEN-gemeten 390,8m3.
- Gelegen op 119m2 eigen grond.
- Energielabel A. Dus energie zuinig.
- In 1993 uitgebouwd aan de achterzijde en opbouw 2e verdieping. Tevens toen voorzien van een betonnen begane grond vloer met tegels en vloerverwarming.
- Voorzien van diverse screens en/of rolluiken.
- Zonnige op het ZW gelegen tuin/plaats en groot balkon op de 1e verdieping.
- Aanvaarding in overleg.
Lees de volledige omschrijving

Kenmerken

Overdracht

Aanvaarding
in overleg

Bouw

Soort woning
eengezinswoning
Type woning
tussenwoning
Soort bouw
bestaande bouw
Bouwjaar
1928
In aanbouw
nee

Details

Voorzieningen
buitenzonwering, dakraam, rolluiken, zonnepanelen
Ligging
aan rustige weg, in woonwijk
Permanente bewoning
ja
Daktype
plat dak
Dakmateriaal
bitumineuze dakbedekking, pannen

Oppervlakten en inhoud

Woonoppervlakte
117 m²
Perceel
119 m²
Inhoud
391 m³

Indeling

Aantal kamers
4
Aantal slaapkamers
3
Aantal etages
3
Aantal badkamers
2
Badkamervoorzieningen
inloopdouche, toilet, vloerverwarming, wasmachineaansluiting, wastafelmeubel
Keuken type
inbouwapparatuur, open keuken

Isolatie en verwarming

Isolatievormen
dakisolatie, dubbel glas
Soort verwarming
cv ketel
Warmwater installatie
cv ketel
Ketel bouwjaar
2018
Ketel type
Nefit HR
Ketel gas/olie
gas
Ketel eigendom
eigendom

Energielabel

Energielabel
A
Einddatum energielabel
2033-02-23

Kadastrale gegevens

Kadastrale aanduiding
Stompwijk F 1507
Oppervlakte
119 m²
Eigendomssituatie
volle eigendom

Buitenruimte

Tuintype(n)
achtertuin, voortuin, zonneterras
Hoofdtuin type
achtertuin
Hoofdtuin oppervlakte
24 m²
Hoofdtuin achterom
ja
Ligging hoofdtuin
zuidwest

Garage

Garagesoorten
geen garage

Parkeergelegenheid

Faciliteit
openbaar parkeren

Schuur/berging

Aantal
1
Soort
vrijstaand steen
Bekijk alle kenmerken